Pedagogická fakulta UP začíná s rekonstrukcí své hlavní budovy

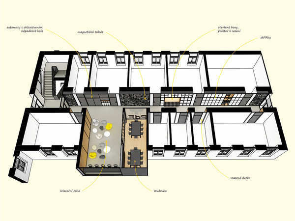
Z vizualizace interiérů. Rekonstrukce hlavní budovy PdF UP potrvá do ledna 2026.
Zdroj: archiv PdF UP a Vojtěch Duda
Wednesday 12 February 2025, 12:00 – Text: Milada Křížková Hronová

Moderní zázemí pro studenty i pedagogy. To je cíl rekonstrukce hlavního objektu Pedagogické fakulty Univerzity Palackého na Žižkově náměstí. Stavbu fakulta předá zhotoviteli již na konci února, hotovo by mělo být na konci ledna 2026.

Hlavní budova Pedagogické fakulty UP stojí na olomouckém Žižkově náměstí od třicátých let minulého století. Kdysi sloužila potřebám armády. Univerzita Palackého ji převzala na počátku devadesátých let a postupně prostory objektu adaptovala pro své potřeby. Rekonstrukce však nikdy neprobíhala v takovém rozsahu, jaký je nyní připraven.

„Máme před sebou vizi moderní budovy uzpůsobené pro vzdělávání ve 21. století. Naším cílem je zrekonstruovat budovu tak, aby splňovala podmínky pro moderní výuku. Chceme provzdušnit, prosvětlit prostory chodeb i schodiště a zrekonstruovat stávající, již nevyhovující prostory učeben. Myslíme přitom také na větší bezpečnost a pohodlí studentů a nezapomínáme ani na studenty se specifickými potřebami, tedy na nezbytné bezbariérové úpravy,“ řekl Vojtech Regec, děkan PdF UP.  

Stavební práce, které započnou na konci února, jsou rozděleny do dvou etap, aby bylo možné vždy uzavřít pouze jednu část budovy. Zahrnou rovněž komplexní opravu středové části budovy. Přestavbou projdou nejen vnitřní prostory fakulty, ale projeví se i na celkovém vzhledu budovy. Jednotlivá patra propojí nové výtahy a současně dojde k vybudování nového schodiště ve středové části, které zajistí snadnější obsluhu pátého podlaží. Budou vyměněny podlahy a osvětlení v učebnách. Zároveň dojde ke zlepšení akustiky a doplnění elektroinstalace v učebnách, případně zatemnění oken. Kvůli vyšší úrovni bezpečnosti bude do objektu doplněn i elektronický požární systém a evakuační rozhlas. Fakulta využije také nové architektonické prvky a upraví i hlavní vstup do budovy.

„Těšíme se, že se původně vojenský objekt konečně promění v moderní univerzitní stavbu, která naváže na dostavbu fakulty z roku 2013. Všechny práce se uskuteční za jejího plného provozu,“ dodal děkan PdF UP.

Zdůraznil přitom, že si rekonstrukce vyžádá maximální vzájemnou spolupráci. Do objektu se bude možné dostat pouze ze dvorů z ulice 17. listopadu, respektive z ulice Jiřího z Poděbrad, případně přímo vchodem z ulice Jiřího z Poděbrad (jen na zaměstnaneckou či studentskou kartu).  

„Apeluji na vzájemnou toleranci, nebude to jednoduché období. Je samozřejmé, že budeme muset respektovat omezení a vyrovnat se s organizačními nároky stavby. Rekonstruovat se bude vždy jedna část budovy, druhá se bude využívat. Mírně jsme proto posunuli praxe a provedli některé změny, ale jinak by výuka měla probíhat tak, jak je v daném semestru naplánována,“ doplnil Vojtech Regec. Rekonstrukce rovněž omezí parkovací možnosti u fakulty a pracovníci budou ve větší míře využívat parkování v areálu Envelopy.

Pokud jde o prostory k výuce, bude fakulta využívat nejen místa té části objektu, jež v danou chvíli nebude pod náporem rekonstrukce, ale i další části fakulty, jež jsou umístěny v Uměleckém centru UP či v objektu v Purkrabské ulici. Děkan Regec v této souvislosti velmi ocenil pomoc přírodovědecké a filozofické fakulty, které v rámci svých možností pomohly s chybějícími učebnami pro výuku PdF UP.

Celkové náklady na opravu, kterou provede společnost Metrostav DIZ, s. r. o., vyjdou na více než sto osmdesát milionů korun. Část finančních prostředků uhradí dotace z Evropské unie a Ministerstva školství, mládeže a tělovýchovy ČR. Téměř polovinu nákladů uhradí fakulta ze svých finančních prostředků. O rekonstrukci i jejím harmonogramu informuje PdF UP pravidelně zde.

Back

Privacy settings

We use cookies and any other network identifiers on our website that may contain personal data (e.g. about how you browse our website). We and some of the service providers we use have access to or store this data on your device. This data helps us to operate and improve our services. For some purposes, your consent is required to process data collected in this way. You can change or revoke your consent at any time (see the link at the bottom the page).

(Essential cookies enable basic functions and are necessary for the website to function properly.)
(Statistics cookies collect information anonymously. This information helps us to understand how our visitors use our website.)
(They are designed for promotional purposes, measuring the success of promotional campaigns, etc.)